UBICACIÓN: Calle Alonso Cano, Madrid
TRABAJOS REALIZADOS: reforma integral
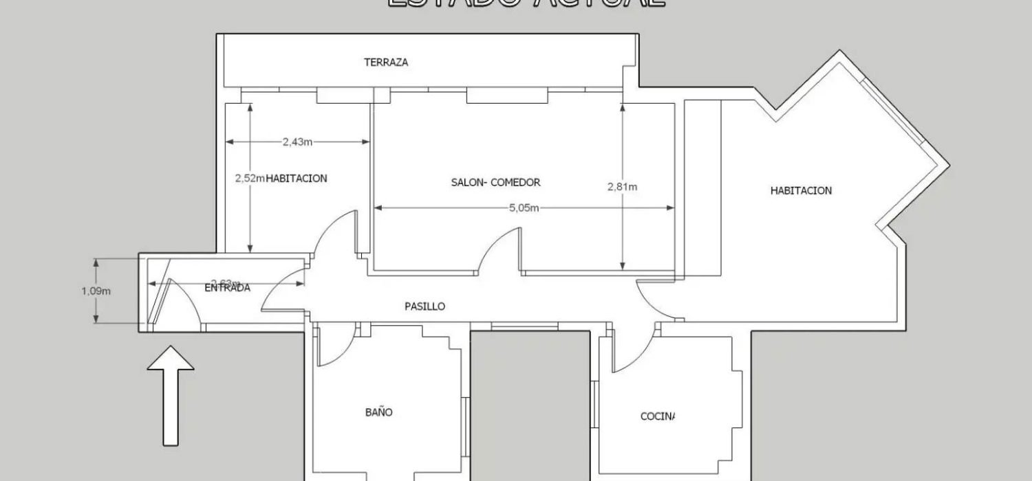
ESTADO INICIAL: piso de 2 habitaciones, salón, cocina independiente y baño.
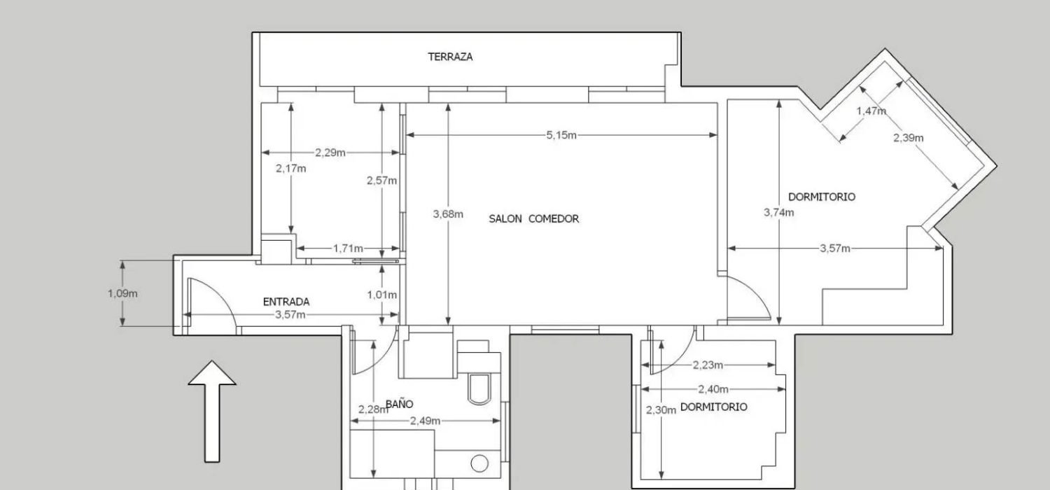
ESTADO REFORMADO:
Teníamos por delante un reto importante ya que el piso no tenia grandes dimensiones y había que proponer a la propiedad una propuesta donde había que incluir suelo radiante / refrescante con aerotermia. Junto con Estudio Diseño Absoluto hemos conseguido cambiar la distribución y evidentemente cumplir con creces las peticiones de la propiedad.
DISTRIBUCIÓN: Inicialmente el piso estaba distribuido en salón-comedor, baño, cocina independiente y dos habitaciones, una de ellas de dimensiones minúsculas. Para cambiar la distribución y darle a la casa mas amplitud, cambiamos la ubicación de la cocina y eliminamos el pasillo que había. Los nuevos tabiques y los techos se hicieron en pladur con el aislamiento adecuado.
INSTALACIONES: Todas las instalaciones se cambiaron por completo. La instalación eléctrica nueva con su cuadro correspondiente y la cantidad de enchufes adecuada a la petición de la propiedad. Fontanería tanto en la cocina como en el baño en tubería multicapa con las secciones de los tubos adecuados. La instalación de aerotermia con suelo radiante fue un elemento importantísimo y bastante complicado de ajustar las dimensiones de la aerotermia para darle cabida en el baño. ¡Pero el resultado fue perfecto!
CARPINTERIA: La carpintería de madera se fabrico a medida en Carpintek. Las puertas de paso y los armarios se lacaron en blanco y el interior de los armarios en lino cancun le da una elegancia aparte a este proyecto. Si nos fijamos el rodapié, en el encuentro con las jambas de las puertas tienen un elemento decorativo muy bonito.
Un elemento muy interesante es la fabricación a medida de la puerta de entrada. Puerta de 240cm alto y copiando el dibujo de las demás puertas de entrada del edificio. ¡GRAN TRABAJO!
La carpintería exterior se fabricó a medida en Ventanas y Compactos. Se barajaron dos opciones de carpintería exterior: en aluminio y PVC, pero al final nos decidimos por ventanas de PVC con persianas eléctricas y cristales bajo emisivos.
La propiedad tenia muy claro que aparte de las persianas en las ventanas quería colocar toldos eléctricos. Los fabricamos a medida en Toldos Europa con telas iguales a las existentes en el edificio.
REVESTIMIENTOS: Uno de los elementos mas bonitos de este proyecto es la colocación de Suelo laminado AC5 Kronoswiss Grand Selection. ¡Un gran acierto! Cabe destacar que esta tarima es apta para suelos radiantes/refrescantes.
En cuanto a los revestimientos de las paredes de cocina y baño optamos por revestimientos porcelánicos imitación mármol de diferentes tamaños y así conseguimos un resultado espectacular.
COCINA: La cocina tiene varios elementos que queríamos destacar: una campana volada de obra, revestimientos de gran tamaño imitación mármol, el mobiliario de cocina lacado en color VERDE y el suelo de tarima igual que el resto de la casa. ¡UN GRAN ACIERTO!
PAPELES PINTADOS: Para terminar de darle a la vivienda una calidez y una personalidad aparte hemos empleado papeles pintados en la habitación principal, salón y entrada.
Esperemos que os guste y que encontréis nuevas ideas para vuestras reformas.
Reformas de pisos en Madrid
La reforma de pisos en Madrid puede variar considerablemente en costo según el alcance de las mejoras, los materiales seleccionados y la mano de obra. Una reforma integral, que incluye mejoras en cocinas, baños, dormitorios, salas de estar, e instalaciones de agua y luz, puede oscilar entre 20.000 y 60.000 euros, con un precio medio de unos 21.621 euros. Antes de iniciar cualquier reforma, es necesario solicitar los permisos de obra pertinentes en el Ayuntamiento, lo cual puede añadir entre 200 y 700 euros al costo total.
Un ejemplo detallado de una reforma integral para un piso de 70 metros cuadrados podría incluir aspectos como la cocina, baño, albañilería, instalación eléctrica, climatización, carpintería, puertas, parqué y pintura, con un costo estimado en el rango de 45.000 a 60.000 euros. Esta inversión no solo mejora el confort del hogar sino que también puede revalorizar significativamente el piso en el mercado inmobiliario.
Es esencial comparar presupuestos de diferentes proveedores y considerar la revalorización potencial del inmueble tras las reformas. Además, es recomendable consultar a profesionales para un asesoramiento adecuado y obtener un presupuesto cerrado que evite sorpresas en el futuro.




















